0
Retour

Vénéjan (30200)
Opportunité rare : Maison 130m2 à terminer

  • à propos de ce
    bien

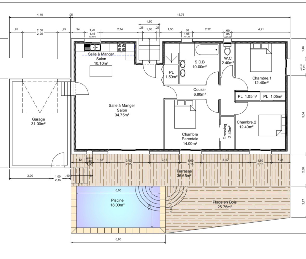
    Située sur la commune de Vénéjan, sur une parcelle boisée de 1400m2, cette maison individuelle de plain-pied d'environ 130m2 offre une opportunité rare : finaliser un projet de construction déja bien avancé, selon vos envies.   Édifiée sur un vide sanitaire, la maison bénéficie d'un gros oeuvre déja réalisé en agglos Betotherm, reconnus pour leurs performances en isolation thermique. Le permis prévoit également une piscine et un garage attenant.   Les + :  - Gros oeuvre terminé - Menuiseries incluses dans le prix (à poser) - Réseaux déja existant sur le terrain - Construction en matériaux performants - Libre choix des matèriaux de finitions   Travaux à prévoir :  - Isolation - électricité/plomberie - pose des menuiseries - Assainissement individuel   Ce bien s'adresse à des acquéreurs souhaitant personnaliser leur future maison tout en bénéficiant d'une base de construction déja existante. Un projet idéal pour créer un lieu de vie à votre image !   Les risques auxquels ce bien est exposé sont disponibles sur le site : www.georisques.gouv.fr
    • Prix
      194 000 €
    • Code postal
      30200
    • Surface habitable (m²)
      130 m²
    • surface terrain
      1 400 m²
    • Nombre de chambre(s)
      3
    • Nombre de pièces
      5
    • Références
      0118
  • Plus d'informations
    financières

    • Prix de vente
      194 000 €
    • Les honoraires d'agence seront intégralement à la charge du vendeur
       
  • Plus de
    détails

    • Nb de salle de bains
      1
    • Terrasse
      OUI
    • Nombre de garage
      1
    • Exposition
      Sud
    • Année de construction
      2025
    • Terrain arboré
      OUI
  • la
    copropriété

    • Copropriété
      NON
  • Plus d'informations sur
    le quartier

    • Commerces et santé
    • Loisirs
    • Ecoles
    • Transports
    • Pratique
  • Bilan
    énergétique

    DPE GES
    DPE ANCIENNE VERSION

Ce bien
m'intéresse

Nos outils